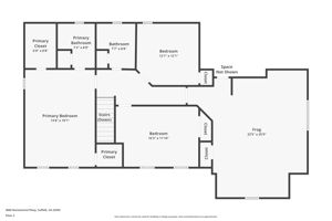
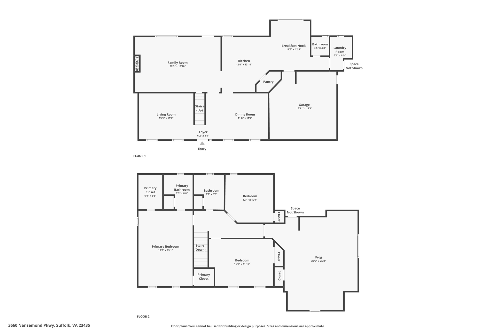
3660 Nansemond Pkwy, Suffolk, VA 23435
Toggle Navigation
Images
Videos
Map
Previous Photo
Next Photo
Images
Slideshow
Photo Grid
Hide
Previous
Next
Show more
Videos