362 Spring Hill Pl, Smithfield, VA 23430
Toggle Navigation
Images
Videos
Floor Plans
Map
Previous Photo
Next Photo
Images
Slideshow
Photo Grid
Hide
Previous
Next
Show more
Videos
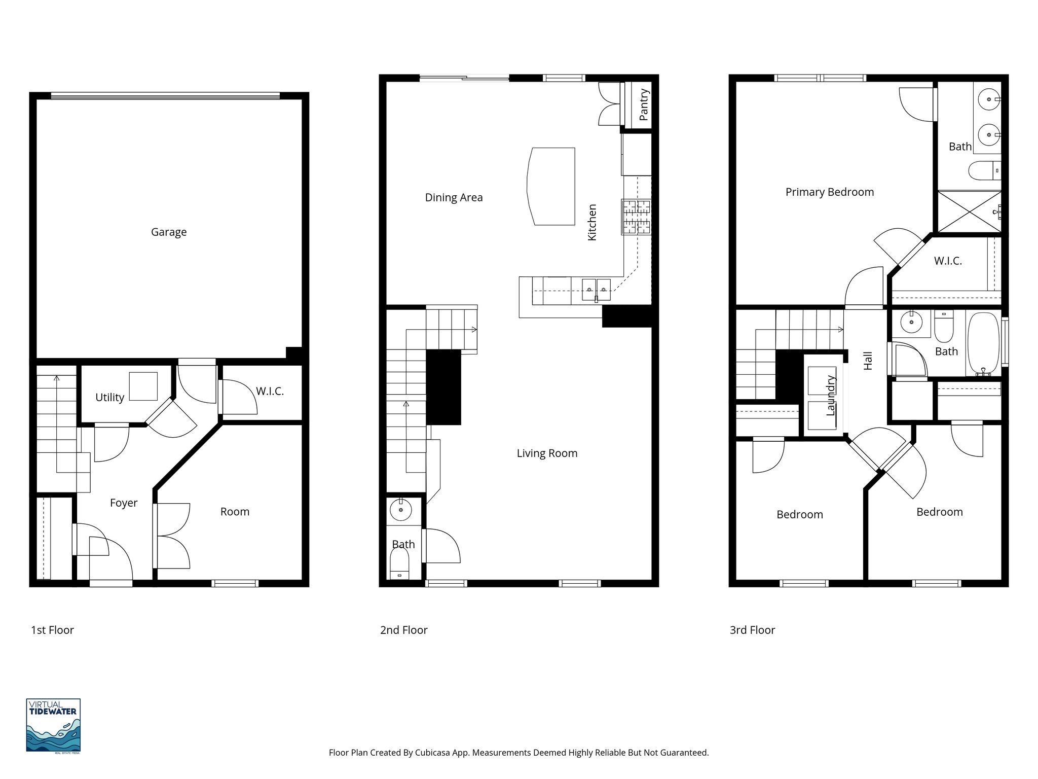
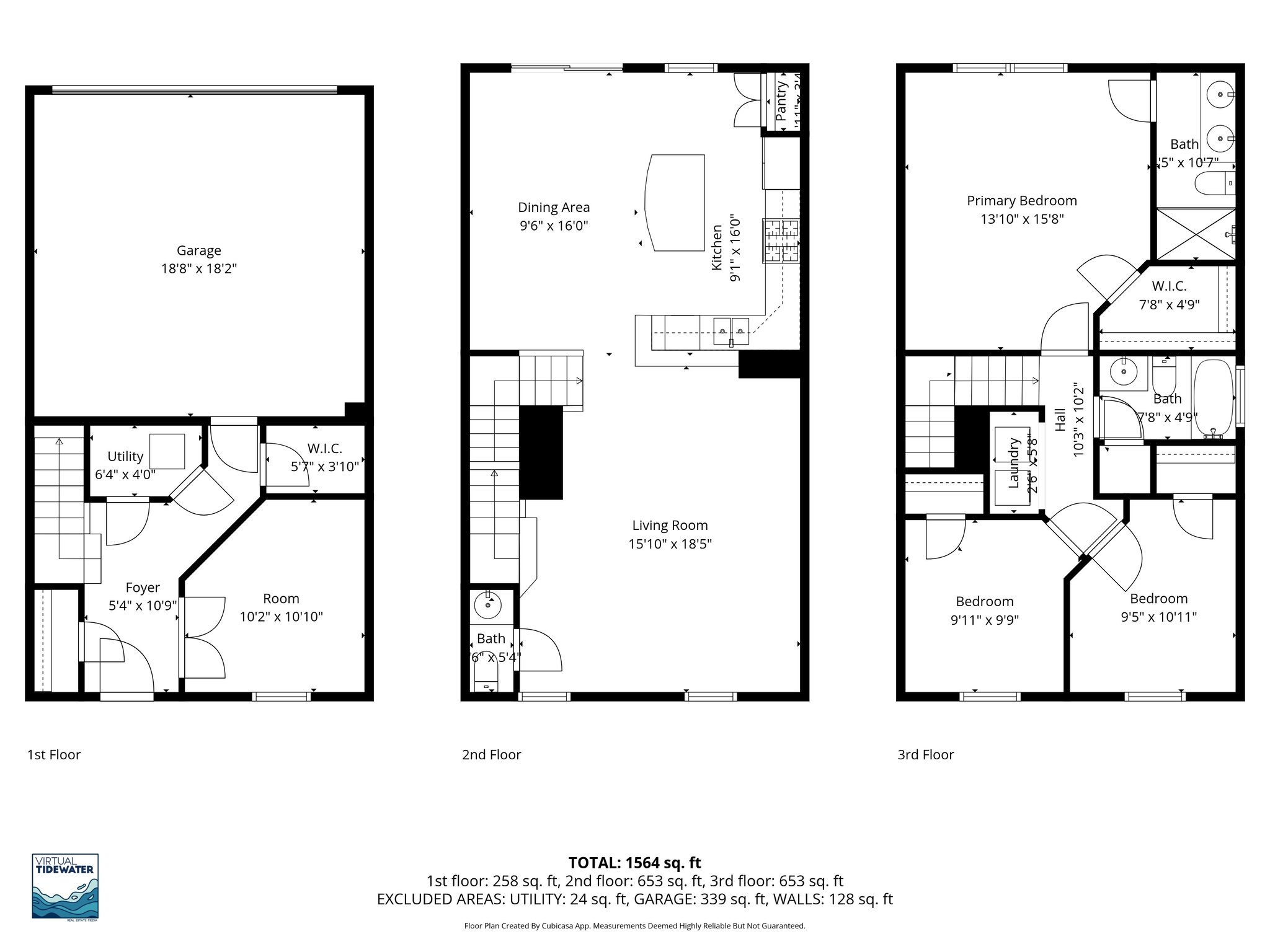
Floor Plans
Slideshow
Photo Grid
Hide
Previous
Next