8502 Ocean Front Ave Unit A, Virginia Beach, VA 23451
Toggle Navigation
Videos
3D Tour
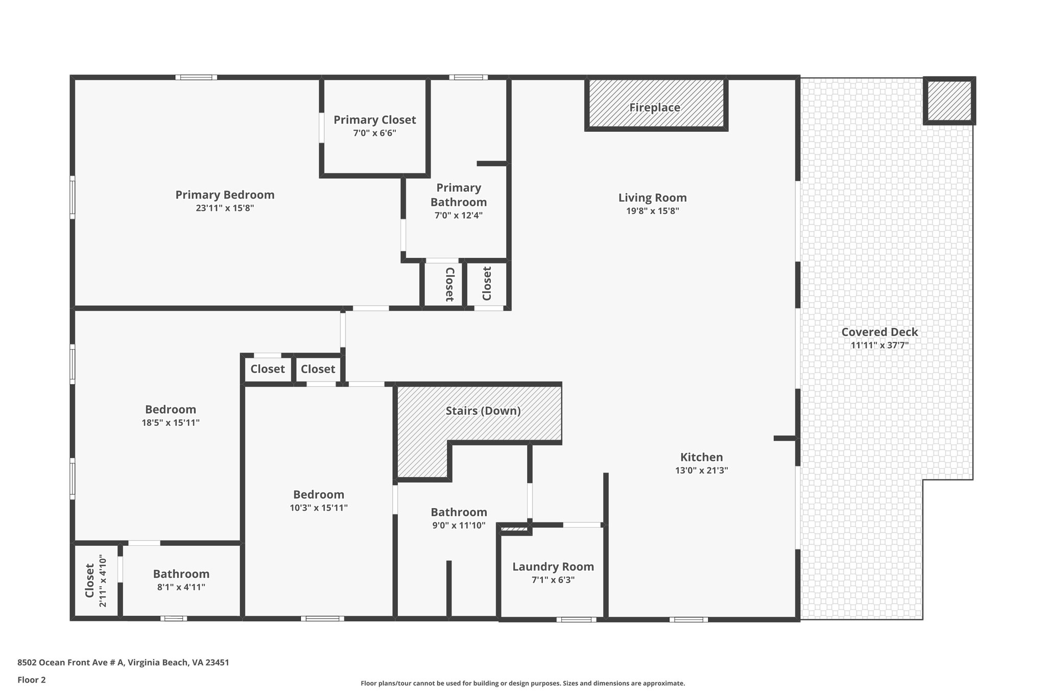
Floor Plans
Images
Map
Videos
3D Tour
Floor Plans
Slideshow
Photo Grid
Hide
Previous
Next
Previous Photo
Next Photo
Images
Slideshow
Photo Grid
Hide
Previous
Next
Show more