Details

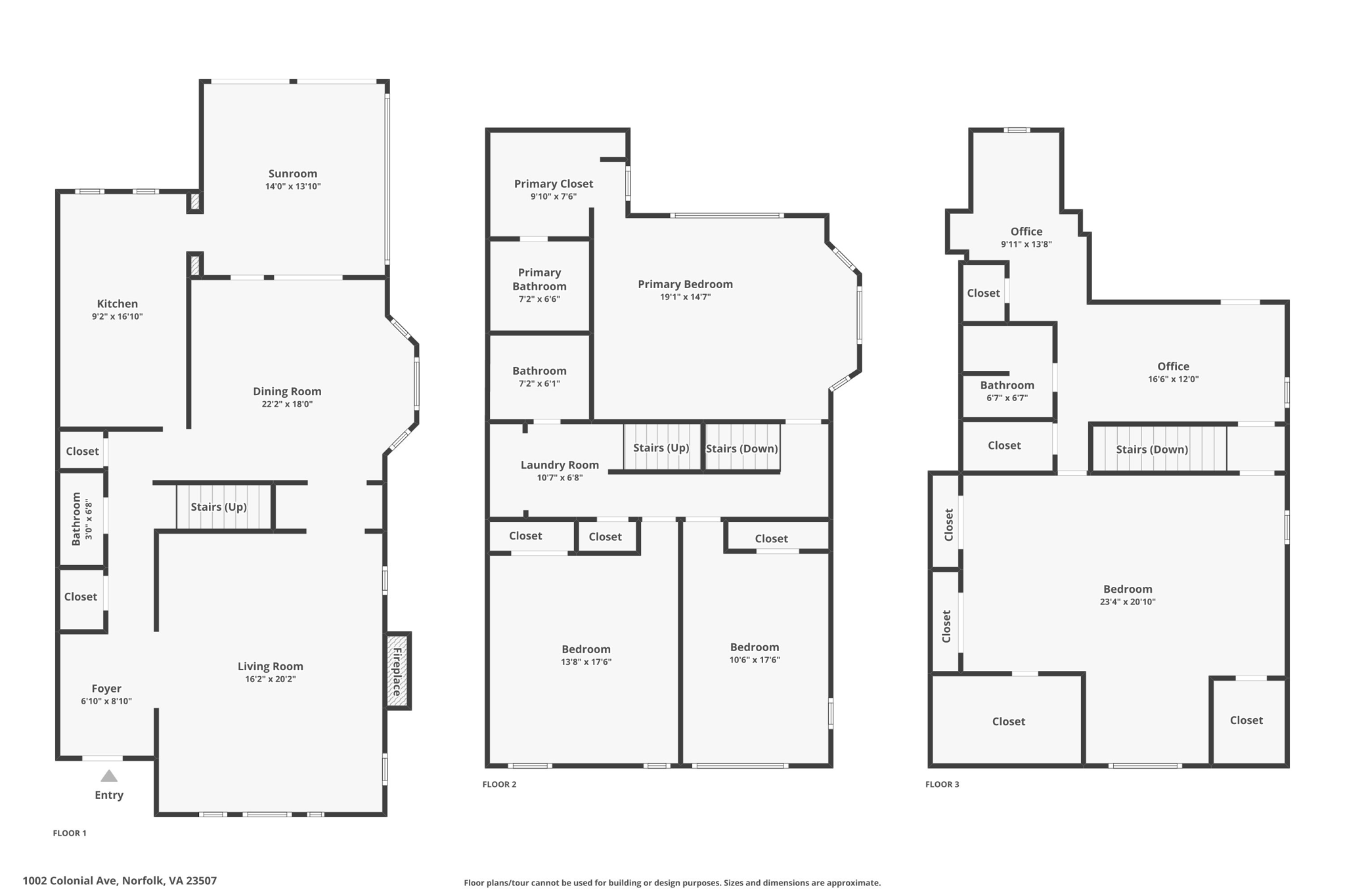
Spacious three-story brick end-unit townhome in the heart of Ghent Square offering 3,153 SF of flexible, light-filled living. Classic hardwood floors, generous room sizes, and an easy flow ideal for both everyday living and entertaining. The main level features a living room with gas fireplace, formal dining room, sunroom room, eat-in kitchen, wet bar, and half bath. The 2nd floor includes a primary suite with updated shower (2021) and new windows, plus two additional bedrooms and a full bath. The 3rd floor offers two versatile rooms—perfect for a den, craft room, or additional bedrooms—with hall access and a full bath. Recent improvements include HVAC and air handler (2018), new glass front door (2025), new refrigerator and stove (2025), updated kitchen faucets (2026), and primary suite windows (1 yo). Private fenced yard, shed, two reserved parking spaces, window treatments, and low $67/month HOA. A rare opportunity to own a home with charm, privacy, and character in Ghent Square.

  • $720,000
  • 5 Bedrooms
  • 3.1 Bathrooms
  • 3,153 Sq/ft
  • Lot 0.12 Acres
  • 2 Parking Spots
  • Built in 1977
  • MLS: 10618712

Images

Floor Plans

3D Tour