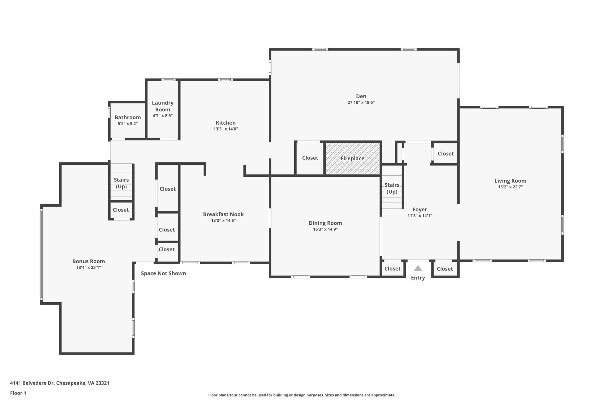
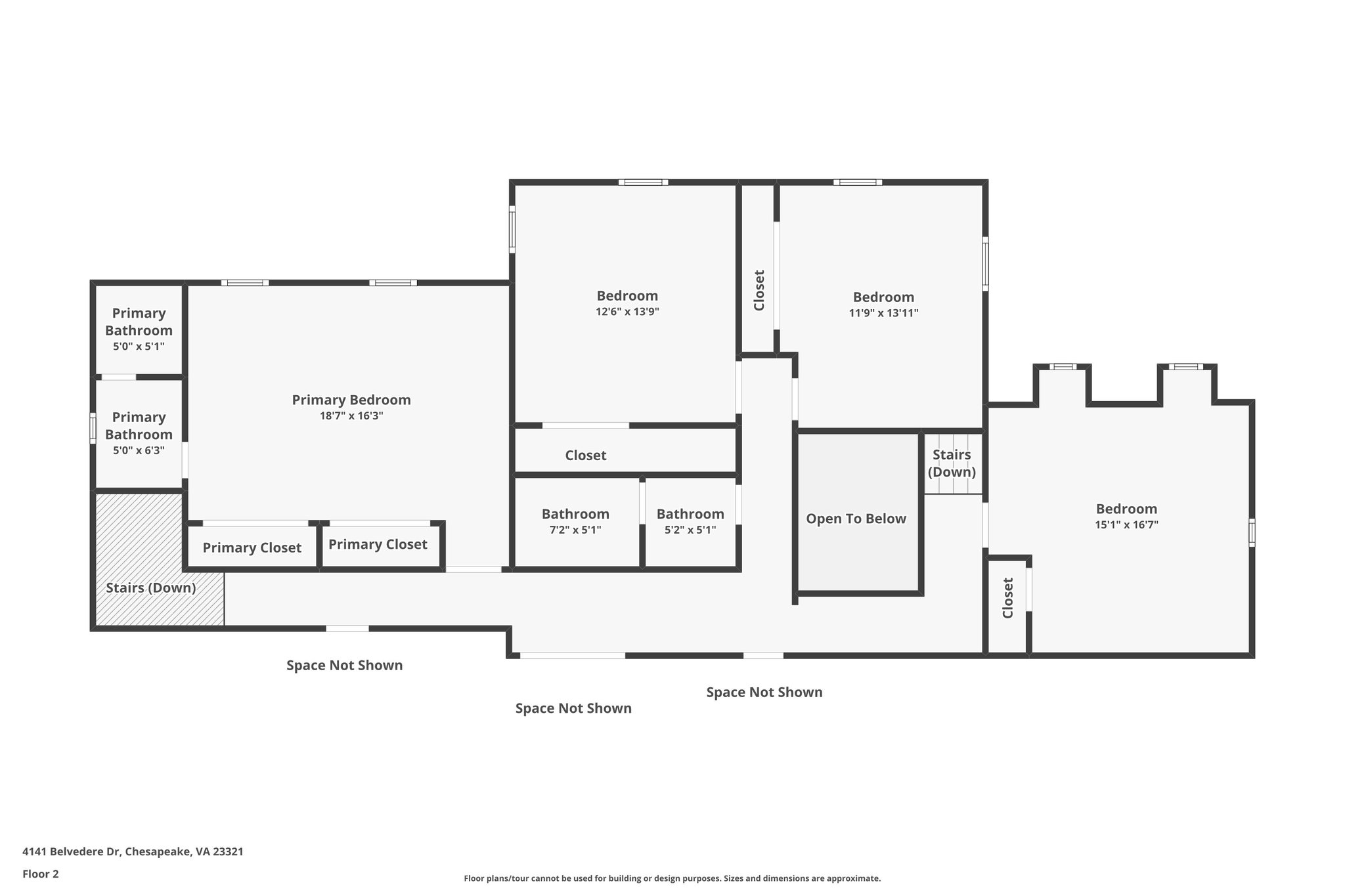
4141 Belvedere Dr, Chesapeake, VA 23321
Toggle Navigation
Images
Floor Plans
3D Tour
Map
Previous Photo
Next Photo
Images
Slideshow
Photo Grid
Hide
Previous
Next
Show more
Floor Plans
Slideshow
Photo Grid
Hide
Previous
Next
3D Tour