2529 Seven Kings Rd, Virginia Beach, VA 23456
Toggle Navigation
Images
Map
3D Tour
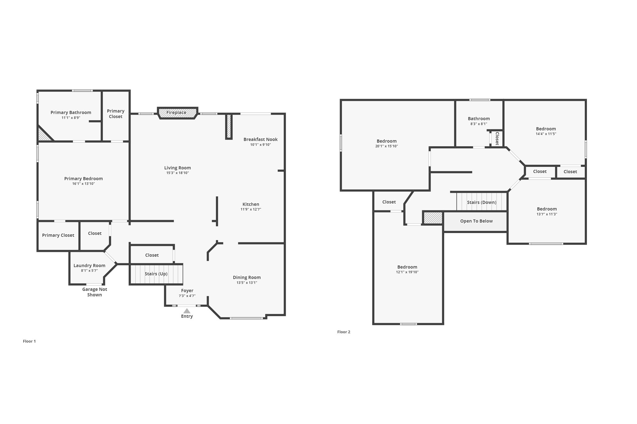
Floor Plans
Previous Photo
Next Photo
Images
Slideshow
Photo Grid
Hide
Previous
Next
Show more
3D Tour
Floor Plans
Slideshow
Photo Grid
Hide
Previous
Next